ECO Newton Gleitschienenschließer TS 61 B/G – Grundkörper mit Hebelarm ohne Gleitschiene Gleitschienenschließer – ECO Typ 5030065740 oder 5030065741
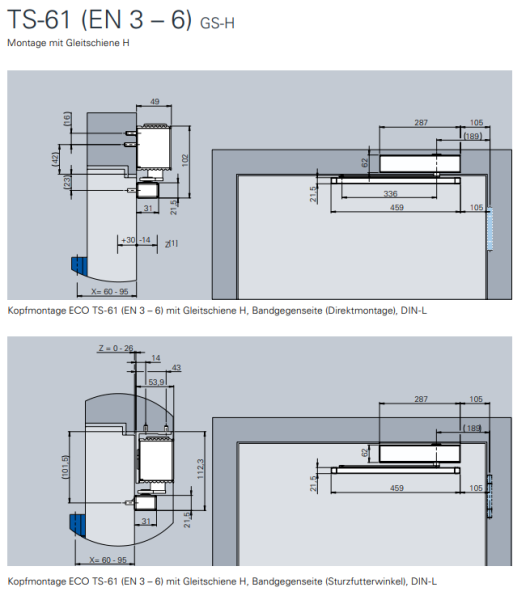
Produktmerkmale Schließkraftgröße 3-6 nach EN 1154 (für Türbreiten bis 1400 mm) Endschlag, Schließgeschwindigkeit und Öffnungsdämpfung frontseitig stufenlos einstellbar. Für 1 und 2 flügelige Türanlagen geeignet Gleiche Ausführung für DIN-L / R Bautiefe nur 49 mm Max. Türöffnungswinkel: 180°
Anwendungsgebiete Für Rauch- und Brandschutztüren geeignet Rechte und linke Anschlagtüren Anschlagtüren bis 1400 mm Flügelbreite Türblattmontage Bandseite und Bandgegenseite
Ausführung:
ECO Typ 5030065740 oder 5030065741
Grundkörper mit Hebelarm ohne Gleitschiene
DIN LS und DIN RS Türen verwendbar
Oberflächen RAL 9005 ECO schwarz
Für Flügelbreite bis 1400mm
Für Band- oder Bandgegenseite wählbar
Lieferumfang: Grundkörper mit Hebelarm und Montageplatte – Gleitschienen GS-H gesondert bestellbar. Siehe hierzu nachstehende passende und zugehörige Produkte.