Wilka EK-Rohrrahmenschloss Panikfunktion "C" Nr.7697 LS/RS F-Stulp-24x3mm Edelstahl Vollversion Geprüft nach: EN 14846 / EN 179 und EN 1125
Hinweis: Dieses Rohrrahmenschloss ist ein Sonderartikel und vom Umtausch ausgeschlossen! Diese Rohrrahmenschlösser sind auf Anfrage auch mit U-Stulp lieferbar!
Einsetzbar bei: 1-fl. Anschlagtüren 2-fl. Anschlagtüren (Gangflügel) DIN RS und DIN LS wählbar
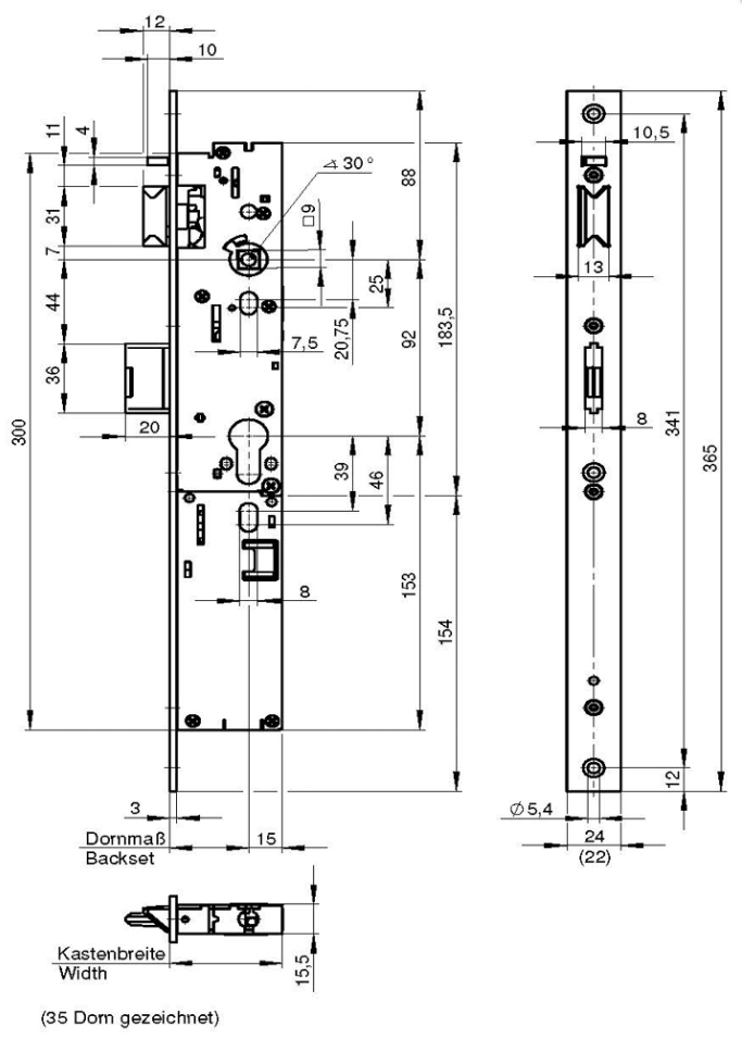
Beschreibung: Elektrisch kuppelbares Anti-Panik-Einsteckschloss für Rohrrahmentüren, Richtungsangabe erforderlich, Schlosskasten komplett verzinkt, für Profilzylinder vorgerichtet, 10m Anschlusskabel im Lieferumfang enthalten. Geeignet für den Einsatz in Türen für einbruchhemmende Elemente nach DIN EN 1627-1630 und bei Vorgaben nach VOB Teil C. Zertifiziert nach EN 179, EN 1125 & EN 14846. Feuerschutz geprüft nach EN 1634-1 & DIN 4102-18.