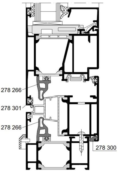
Schüco Mitteldichtung
Mitteldichtung - Schüco Art. Nr.: 278266
Hinweis:
Diese Dichtung ist ein Sonderartikel und vom Umtausch ausgeschlossen!
Ausführung:
- Mitteldichtung für Schüco Fenstersystem
- Original Schüco Mitteldichtung aus EPDM
- Profil Systeme: AWS Bautiefe 65 / 70 / 75mm
- Dichtungsecken gesondert bestellbar
- Verpackungseinheit VE= 40m
Gesondert bestellbar:
Dichtungs- Spezialklebstoff Artikel- Nr. 298074
Zum sicheren und schnellen Verkleben von EPDM- und Neopren-Dichtungen
Dichtungsecken Art. Nr.: 278268